ID CP2783394

De inchiriat spatiu comercial/ apartament nemobilat in zona Iancului

ID CP2783394

750 €

Apartament cu 2 camere de închiriat
Bucur Obor, Bucuresti
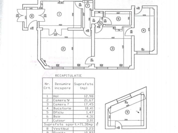
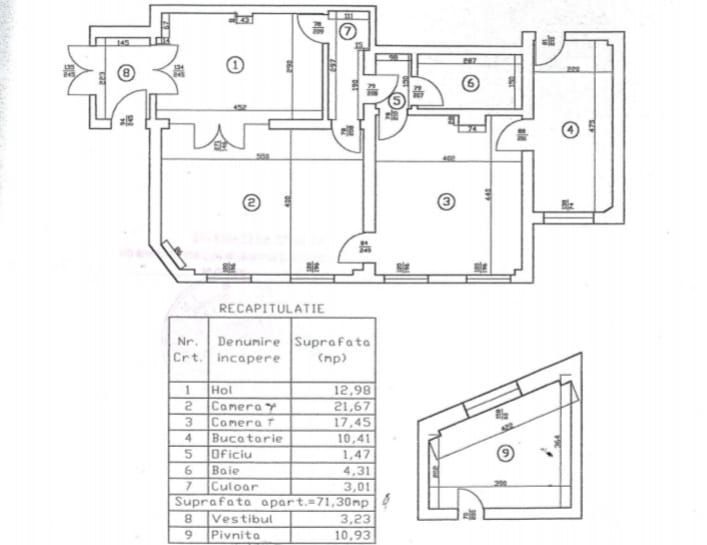
72 mp
1976

AFY Imobiliare propune spre închiriere apartament circular – Zona Bucur Obor / Bd. Ferdinand

Detalii apartament:

Apartament circular, ideal pentru birouri sau spatiu comercial

Compartimentare practică, hol generos (dimensiuni de cameră)

Pivniță și spațiu de depozitare suplimentar

Parcare liberă în zonă

Dotări și finisaje:

Ferestre termopan, centrală proprie

Aer condiționat

Apartament luminos, spațios

Localizare excelentă:

Situat în zona Bucur Obor / Bd. Ferdinand

Acces rapid la mijloace de transport în comun, metrou și linii STB

Aproape de magazine, instituții și alte facilități urbane

Condiții de închiriere:

Disponibil începând cu data de 15 noiembrie 2025

Închiriere pe termen lung

Se percepe garanție

Contract înregistrat la ANAF

Pret 750 euro

Comision agenție: 50% din prima lună de chirie

Citește mai mult

  • Tip apartament
    Apartament
  • Compartimentare
    Circular
  • Număr camere
    2
  • Etaj
    Parter
  • Suprafață utilă
    72 mp
  • Suprafață construită
    80 mp
  • Disponibilitate
    Imediat
  • Stare interior
    Renovat
  • Imobil
    Bloc de apart.
  • An construcție
    1976
  • Număr etaje clădire
    4

Facilități

Aer condiționat
Apă
Apometre
Boxă la subsol
Bucătărie parțial utilată
Canalizare
CATV
Centrală proprie
Curent
Gaz
Geamuri termopan
Iluminat stradal
Internet
Mijloace de transport în comun
Mobilat parțial
Străzi asfaltate
Ușă intrare metal
Uși interior lemn
Alin Murgila - AFY IMOBILIARE
Alin Murgila
Agent Imobiliar

‪+40 770 349 427‬


Solicită chiar acum o vizionare
Telefon
Sună acum Solicită vizionare
Necesare:

Site-ul nu poate funcționa corect fără aceste cookie-uri. Vezi cookie-urile

Statistică:

Strângem statistici anonime despre voi, vizitatorii unici, pentru a vă îmbunătăți experiența dumneavoastră. Vezi cookie-urile

Marketing:

Pentru a ne promova mai eficient serviciile noastre, folosim cookies pentru a vă identifica și a vă oferi proprietăți și servicii personalizate. Vezi cookie-urile

Acest site folosește cookies, află detalii. Alege ce tipuri de cookies dorești să permitem: