ID CP2758699

De vanzare Apartament 2 camere P-ta Alba Iulia Matei Basarab CENTRAL

ID CP2758699

79,500 €

Apartament cu 2 camere de vânzare
P-ta Alba Iulia, Bucuresti
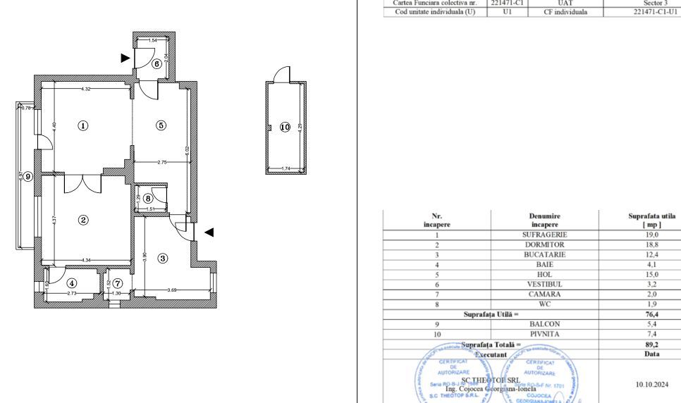
76.4 mp
1941

AFY Imobiliare vă propune spre vânzare un apartament elegant cu 2 camere, situat în zona centrală Piața Alba Iulia – Calea Călărași, în apropiere de Matei Basarab, într-un imobil cu arhitectură deosebită, construit în anul 1941.

Un apartament spațios, luminos și plin de farmec, perfect pentru cei care apreciază eleganța clădirilor interbelice, tavanele înalte, detaliile originale bine păstrate și o locație excelentă, în imediata vecinătate a Rondului Alba Iulia.

Detalii proprietate

Suprafață utilă: 76,4 mp

Suprafață totală: 81,8 mp (inclusiv balcon de 5,4 mp)

Etaj: 3 din 4

Compartimentare: semidecomandat

Număr camere: 2

Număr băi: 1 baie + grup sanitar

Balcon: spațios, orientare Sud-Est

An construcție: 1941

Structură: cărămidă

Expertizat tehnic în 1994 – Clasa U1

Compartimentare și dotări:

Living generos și luminos

Dormitor spațios cu acces la balcon

Bucătărie complet utilată

Baie cu cadă

Tavan înalt, specific imobilelor interbelice

Parchet din lemn masiv, bine întreținut

Uși originale, păstrate în stare excelentă

Centrală termică proprie, cu revizie la zi

Mobilat și utilat complet (aragaz, frigider, mașină de spălat vase și rufe)

Boxă la subsol inclusă

Alte informații:

Imobilul are doar 4 etaje, oferind intimitate și o comunitate restrânsă. Apartamentul este locuibil imediat, dar oferă și un potențial excelent de renovare și personalizare.

Localizare premium:

Situat într-una dintre cele mai apreciate zone centrale ale Capitalei – între Piața Alba Iulia și Calea Călărași, foarte aproape de Matei Basarab și Rond Alba Iulia. Zona oferă acces facil către Piața Unirii, Bulevardul Decebal, transport public (metrou, autobuze, tramvaie), restaurante, magazine, școli și zone verzi.

O proprietate ideală pentru locuință personală sau investiție, cu un raport excelent între preț, zonă și suprafață – o oportunitate rară în centrul Bucureștiului.

Acte la zi – proprietate liberă de sarcini

Comision agenție: 2%

Pentru informații suplimentare sau programarea unei vizionări, nu ezitați să ne contactați.

AFY Imobiliare – Profesionalism, transparență și suport complet în procesul de achiziție.

Citește mai mult

  • Tip apartament
    Apartament
  • Compartimentare
    Semidecomandat
  • Număr camere
    2
  • Dormitoare
    1
  • Număr bucătării
    1
  • Număr băi
    1
  • Etaj
    3
  • Suprafață utilă
    76.4 mp
  • Suprafață totală
    81.9 mp
  • Disponibilitate
    Imediat
  • Confort
    1
  • Stare interior
    Bună
  • Anul finisării
    2004
  • Număr balcoane
    1
  • Imobil
    Bloc de apart.
  • Stadiu construcție
    Finalizată
  • An construcție
    1941
  • Tip construcție
    Cărămidă
  • Număr etaje clădire
    4

Facilități

Acoperiș
Apă
Aragaz
Boxă la subsol
Bucătărie închisă
Bucătărie mobilată
Bucătărie utilată
Cadă
Calorifere
Canalizare
CATV
Centrală proprie
Curent
Faianță
Ferestre care se deschid
Ferestre PVC
Frigider
Gaz
Geamuri termopan
Gresie
Iluminat stradal
Interfon
Izolație exterioară
Mașină de spălat rufe
Mașină de spălat vase
Mijloace de transport în comun
Mobilat complet
Parchet
Străzi asfaltate
Ușă intrare metal
Uși interior lemn
Vopsea lavabilă
WC Serviciu
Ina Suărăşan - AFY IMOBILIARE
Ina Suărăşan
Agent Imobiliar

0750270782


Solicită chiar acum o vizionare
Telefon
Sună acum Solicită vizionare
Necesare:

Site-ul nu poate funcționa corect fără aceste cookie-uri. Vezi cookie-urile

Statistică:

Strângem statistici anonime despre voi, vizitatorii unici, pentru a vă îmbunătăți experiența dumneavoastră. Vezi cookie-urile

Marketing:

Pentru a ne promova mai eficient serviciile noastre, folosim cookies pentru a vă identifica și a vă oferi proprietăți și servicii personalizate. Vezi cookie-urile

Acest site folosește cookies, află detalii. Alege ce tipuri de cookies dorești să permitem: