ID CP2744823

De Vanzare Apartament lux 4 camere, Decebal, ULTRACENTRAL, sector 3

ID CP2744823

345,000 €

Apartament cu 4 camere de vânzare
Decebal, Bucuresti
105 mp
1997

AFY Imobiliare vă propune spre vânzare un apartament de lux cu 4 camere și terasă, situat pe Bulevardul Decebal, una dintre cele mai exclusiviste zone din București.

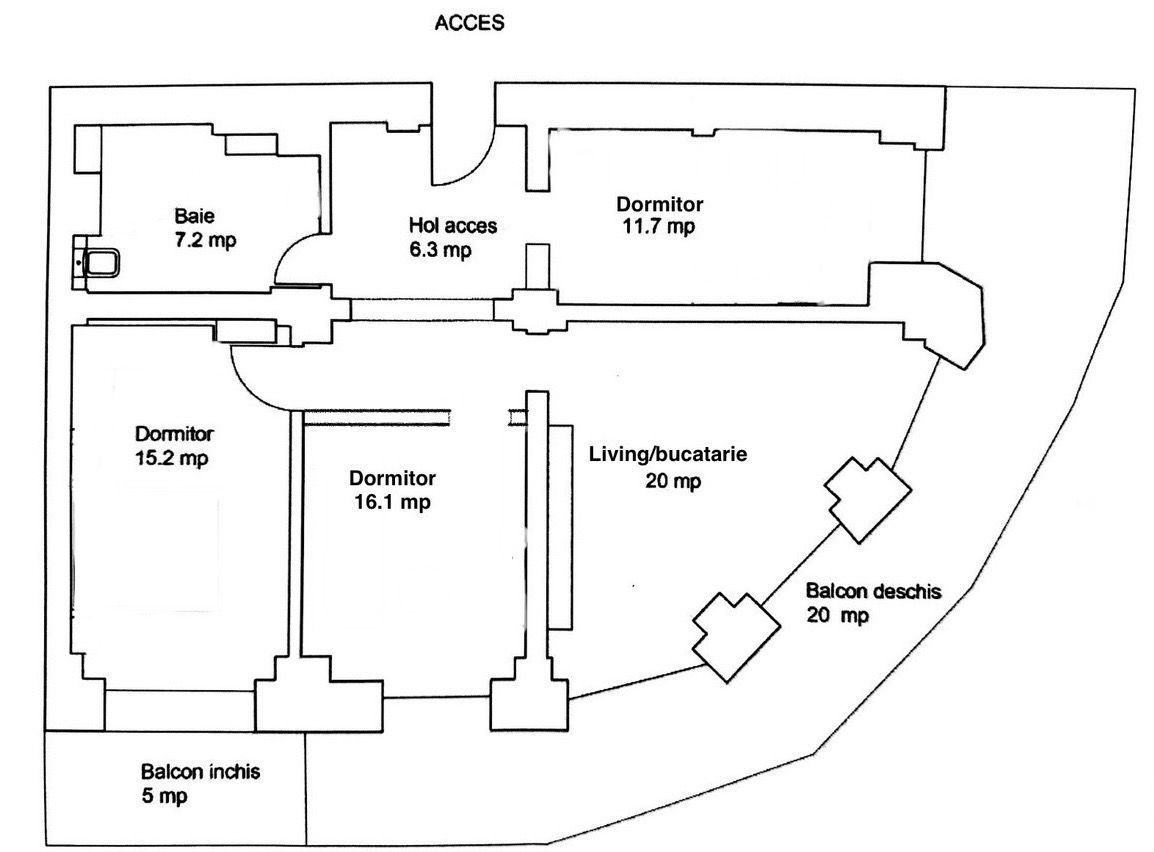
Localizat la etajul 2/8 al unui imobil construit în 1997, apartamentul are o suprafață utilă de 105 m², cuprinzând: 80 m² spațiu interior, o terasă generoasă de 20 m² și un balcon închis de 5 m².

Detalii apartament:

Suprafață utilă: 105 m²

Compartimentare: Decomandat

Etaj: 2 / 8

An construcție: 1997

3 dormitoare, living cu bucătărie open-space

Baie mare complet utilată

Finisaje și dotări premium:

Apartament complet mobilat și utilat – gata de locuit

Bucătărie pe comandă, cu electrocasnice Bosch (aragaz, hotă, frigider, cuptor, filtru de apă Hyundai cu apă rece/fierbinte)

2 televizoare Smart TV de mari dimensiuni

Dressing spațios și spații de depozitare optim organizate

Zonă de birou dedicată – ideal pentru work from home

Geamuri tripan Salamander (7 camere), de la pardoseală până în tavan

Mobilier la comandă, materiale Egger, feronerie Blum, blat de granit

Parchet Egger, plintă NMC vopsită

Baie spațioasă cu cadă, wc și bideu Villeroy & Boch, baterii Grohe, boiler Velis Ariston

Instalație electrică modernă, cablată prin tuburi, cu prize și întrerupătoare Gewiss

Confort & design:

Spații vitrate mari → apartament extrem de luminos

Terasă generoasă de 20 m² pentru relaxare

Balcon închis de 5 m², util pentru depozitare sau zonă suplimentară

Materiale și finisaje atent selecționate, de calitate superioară

Localizare:

Bulevardul Decebal – una dintre cele mai căutate zone din București

Doar 3 minute de mers pe jos până la metrou Muncii

Vizavi de restaurantul Duman

Acces rapid către Piața Alba Iulia, Piața Unirii și Calea Călărași

Acte la zi – proprietate liberă de sarcini

Comision agenție: 2%

Pentru informații suplimentare sau programarea unei vizionări, nu ezitați să ne contactați.

AFY Imobiliare – Profesionalism, transparență și suport complet în procesul de achiziție.

Citește mai mult

  • Tip apartament
    Apartament
  • Număr camere
    4
  • Dormitoare
    3
  • Număr bucătării
    1
  • Număr băi
    1
  • Etaj
    2
  • Suprafață utilă
    105 mp
  • Suprafață construită
    120 mp
  • Disponibilitate
    Imediat
  • Confort
    Lux
  • Stare interior
    Ultrafinisat
  • Anul finisării
    2025
  • Număr balcoane
    1
  • Număr terase
    1
  • Imobil
    Bloc de apart.
  • Stadiu construcție
    Finalizată
  • An construcție
    1997
  • Tip construcție
    Beton
  • Număr etaje clădire
    8

Facilități

Acoperiș
Aer condiționat
Apă
Aragaz
Bideu
Bucătărie deschisă
Bucătărie mobilată
Bucătărie parțial utilată
Cadă
Calorifere
Canalizare
CATV
Curent
Dressing
Faianță
Ferestre care se deschid
Ferestre PVC
Frigider
Gaz
Geamuri tripan
Gresie
Hotă
Iluminat stradal
Interfon
Internet
Izolație exterioară
Izolație interioară
Lift
Mașină de spălat rufe
Mașină de spălat vase
Mijloace de transport în comun
Mobilat lux
Parchet laminat
Sistem de alarmă
Străzi asfaltate
Telefon
Termoficare
TV
Ușă intrare lemn
Uși interior lemn
Vopsea lavabilă
Ina Suărăşan - AFY IMOBILIARE
Ina Suărăşan
Agent Imobiliar

0750270782


Solicită chiar acum o vizionare
Telefon
Sună acum Solicită vizionare
Necesare:

Site-ul nu poate funcționa corect fără aceste cookie-uri. Vezi cookie-urile

Statistică:

Strângem statistici anonime despre voi, vizitatorii unici, pentru a vă îmbunătăți experiența dumneavoastră. Vezi cookie-urile

Marketing:

Pentru a ne promova mai eficient serviciile noastre, folosim cookies pentru a vă identifica și a vă oferi proprietăți și servicii personalizate. Vezi cookie-urile

Acest site folosește cookies, află detalii. Alege ce tipuri de cookies dorești să permitem: